Plan Co_14183_D : Maison contemporaine R+1, 173 M², avec 15 Containers maritimes de 6 M, F5...
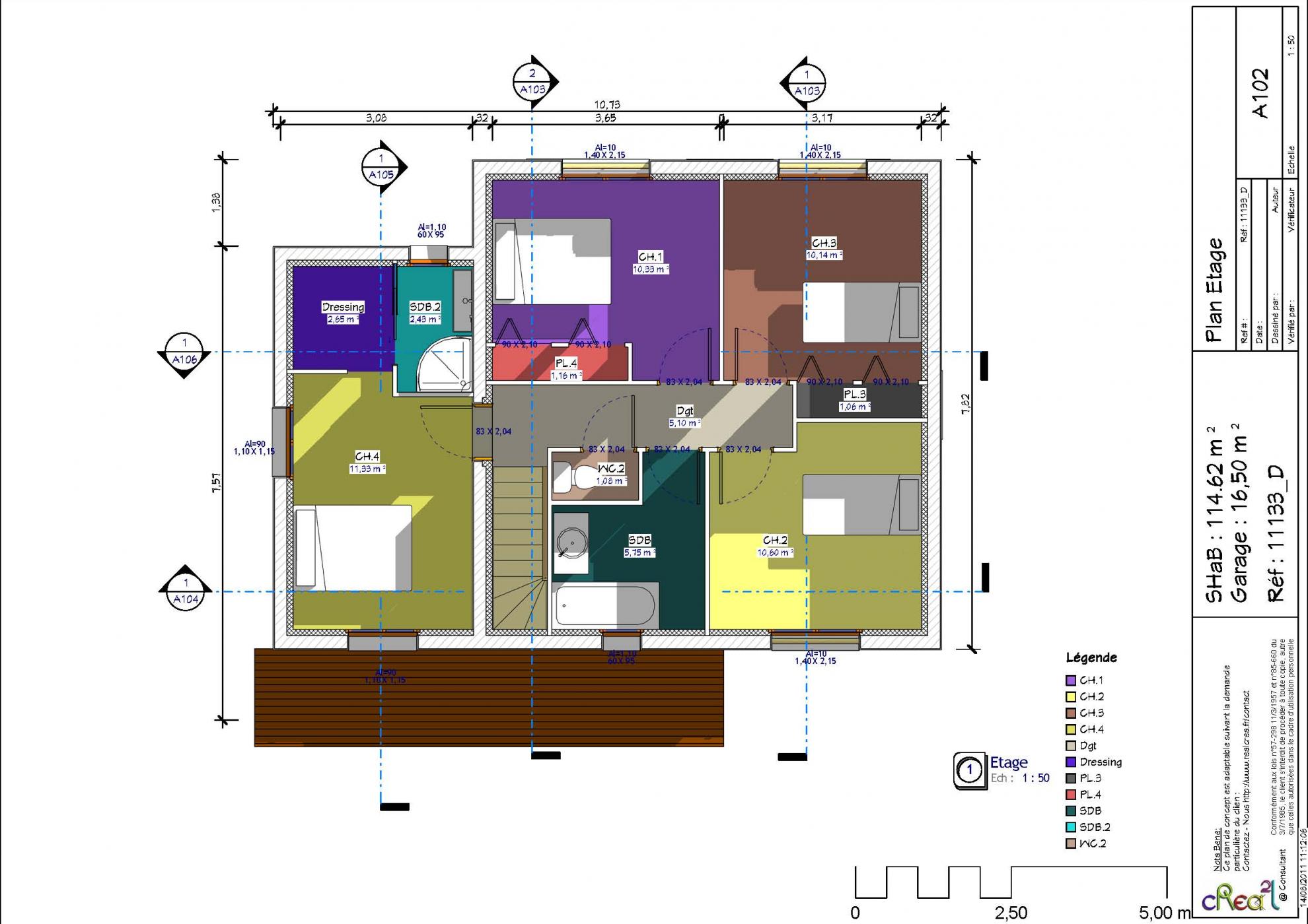
Plan 11133_D : Maison traditionnelle 1suite et 3 chambres à 114 m² habitables + Garage intégré.
| Prestations | PC -130 M² | PC Extension | DP | FAI - ESQ | APD | Conseil + 2 Visuels |
| Plan de Situation | ![]() |
![]() |
![]() |
. | ![]() |
. |
| Plan de Masse | ![]() |
![]() |
![]() |
. | ![]() |
. |
| Plan des Façades et des Toitures | ![]() |
![]() |
![]() |
![]() |
![]() |
. |
| Plan des Coupes | ![]() |
![]() |
![]() |
![]() |
![]() |
. |
| Plan des Intérieures | . | . | . | ![]() |
![]() |
. |
| Plan des Détails | . | . | . | . | ![]() |
. |
| Plan des Cotations | . | . | . | . | ![]() |
. |
| Notice explicative | ![]() |
![]() |
. | . | . | . |
| Visuels Intégration dans le site | ![]() |
![]() |
. | . | . | ![]() |
| Visuels Esquisse | . | . | . | ![]() |
. | . |
| CERFA PC - DP | ![]() |
![]() |
![]() |
. | . | . |
| Attestation RT2012 par BET Thermique | ![]() |
. | . | . | . | . |
| Dossier rendu en PDF | ![]() |
![]() |
![]() |
![]() |
![]() |
![]() |
| Dossier 2D ou 3D en DWG, RVT, SKP à la Demande | Option | Option | Option | Option | Option | . |
| Déplacement sur site en Il-de-France à la Demande | Option | Option | Option | Option | Option | . |
| Offres Forfaitaires | Voir + | Voir + | Voir + | Voir + | Voir + | Voir + |
| Quelques Exemples des prestations |
Présentations |
| Exemple des visuels réalistes types Maison individuelle, Petit collectif R+2, Complexe des locaux d'Activité |
Voir + |
| Exemple la visite virtuelle un City Stade multi-sports |
Voir + |
| Exemple la visite virtuelle un ensemble des locaux d'activité |
Voir + |
| Exemple la visite virtuelle Projet un complexe judiciaire |
Voir + |
| Exemple la visite virtuelle un projet complexe judiciaire |
Voir + |
| Exemple projet d'Aménagement la Suite parentale, la Cuisine style d'atelier d'une villa |
Voir + |
| Exemple les Perspectives réalistes d'un grand villa luxueux |
Voir + |
| Exemple la visite virtuelle la nouvelle salle polyvalente à venir à Triel-sur-seine (78) |
Voir + |
| Exemple la visite virtuelle La place Marché Philippe Prévost à Triel-sur-seine (78) |
Voir + |
| Exemple le parcours visite virtuelle n°1 une grande stade de football |
Voir + |
| Exemple le parcours visite virtuelle n°2 une grande stade de football |
Voir + |
| Formulaire demande devis gratuit |
Voir + |