Maison 12136_D

PDF
Salle-de-Bains: 
2
Chambres: 
4
Surface habitable: 
124,00 m²

Description

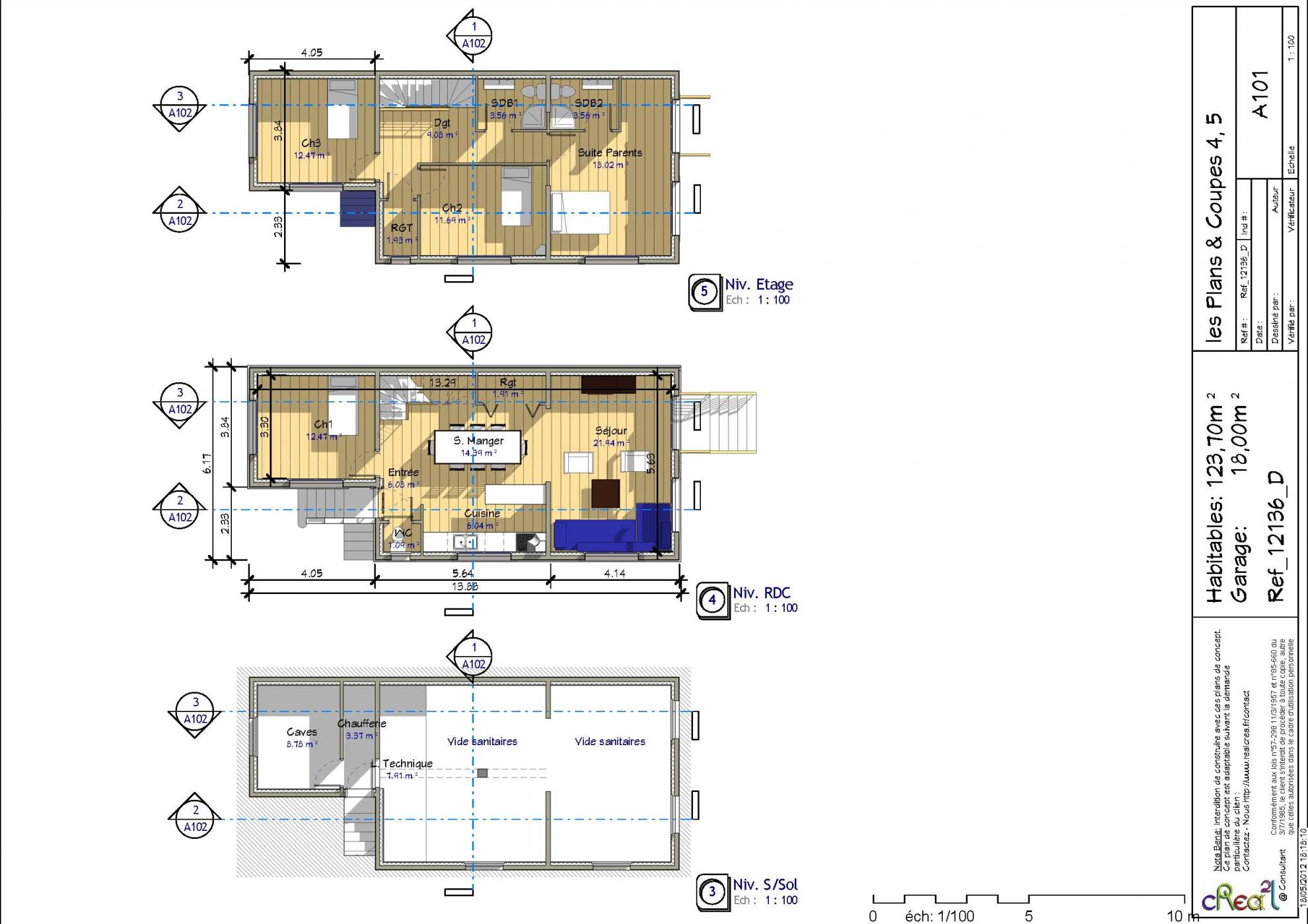
Plan 12136_D : Maison moderne, R+1+SS, 124 m², 1 suite parentale, 3 chambres, sous-sol, garage indépendant.

Nos Services d'Etude forfaitaire

Prestations forfaitaires type Maison individuelle - Devis sans engagement sous 48 heures
Prestations PC -130 M² PC Extension DP FAI - ESQ APD Conseil + 2 Visuels
Plan de Situation . .
Plan de Masse . .
Plan des Façades et des Toitures .
Plan des Coupes .
Plan des Intérieures . . . .
Plan des Détails . . . . .
Plan des Cotations . . . . .
Notice explicative . . . .
Visuels Intégration dans le site . . .
Visuels Esquisse . . . . .
CERFA PC - DP . . .
Attestation RT2012 par BET Thermique . . . . .
Dossier rendu en PDF
Dossier 2D ou 3D en DWG, RVT, SKP à la Demande Option Option Option Option Option .
Déplacement sur site en Il-de-France à la Demande Option Option Option Option Option .
Offres Forfaitaires Voir + Voir + Voir + Voir + Voir + Voir +

Visuel réaliste le projet


Les perspectives commerciales ou les visites virtuelles des projets de construction
Quelques Exemples des prestations
Présentations
Exemple des visuels réalistes types Maison individuelle, Petit collectif R+2, Complexe des locaux d'Activité
Voir +
Exemple la visite virtuelle un City Stade multi-sports
Voir +
Exemple la visite virtuelle un ensemble des locaux d'activité
Voir +
Exemple la visite virtuelle Projet un complexe judiciaire
Voir +
Exemple la visite virtuelle un projet complexe judiciaire
Voir +
Exemple projet d'Aménagement la Suite parentale, la Cuisine style d'atelier d'une villa
Voir +
Exemple les Perspectives réalistes d'un grand villa luxueux
Voir +
Exemple la visite virtuelle la nouvelle salle polyvalente à venir à Triel-sur-seine (78)
Voir +
Exemple la visite virtuelle La place Marché Philippe Prévost à Triel-sur-seine (78)
Voir +
Exemple le parcours visite virtuelle n°1 une grande stade de football
Voir +
Exemple le parcours visite virtuelle n°2 une grande stade de football
Voir +
Formulaire demande devis gratuit
Voir +